我们致力于成为世界级的钢铜门窗企业,
为创造让世界感动的建筑而奋斗!
为创造让世界感动的建筑而奋斗!
![]()
气质是内在的不自觉的外露,是内在美的外在表现。这种静态美包含 所有配件的完美组合构成 和 设计长宽高的黄金配比。
![]()
![]()
![]()
![]()
这个区域的对角分割了主建筑。东部和南部的光分别覆盖了厨房和客厅。客厅被一个外观轻盈的楼梯隔开,楼梯通向一楼的办公室。
![]()
![]()
![]()
![]()
![]()
![]()
![]()
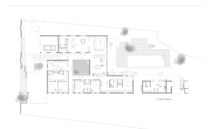
最大的门窗区域面积与主住宅相对应,这是根据业主的愿望设计的,
以产生一个内部的庭院,整个房子的设计都是围绕着这个庭院展开的。
![]()
这个庭院由于缺少屋顶而饱受气候条件的折磨,但它产生了通往房子所有房间的必经之路。
由于其宽大的尺寸,这个围绕天井庭院的走廊变成了一个面向房屋中心的新房间,即外部空间。
此外,主要房间是通过开放空间和间隙(如小休息室和卫生间)相连接的。
并且,OTTOSTUMM钢制系统门窗是专为条件苛刻的气候条件所研发的,
能够有效隔热保温,防水挡风,自动排水,更是后期低维护的门窗产品。
![]()
设计师计划使用的材料减少到混凝土、砖和钢。
这些,加上平屋顶,突出了房子的工业设计感,去除了所有多余的设计技巧及装饰,
遵循了功能主义建筑的主要原则。
![]()
![]()